第九届大学生科技节“筑觉杯”建筑快题设计竞赛顺利开展
6月6日上午,广西科技大学第九届大学生科技节“筑觉杯”建筑快题设计竞赛在第六教学楼顺利开展。本次活动由土建学院大学生科技活动管理中心承办,辅导员沈民合老师出席了活动。
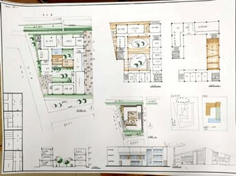
本次大赛以设计社区图书馆为理念,在宣传读书学习理念的同时,开展群众文化活动,实现社区图书馆多功能化。考察了参赛选手的手绘、设计、规划等多项能力。为了保证竞赛在疫情期间顺利开展,大赛制定了相关安全规程,规定了参赛队员需全程佩戴口罩,并保证了绘画过程中合理的安全距离。为参赛选手的健康安全打下了坚实保障。
本次大赛时长6小时,对参赛同学而言,这是一场专业知识、创新意识、身体素质的综合较量。本次大赛的成功举办进一步丰富校园文化生活,培养了学生创新意识和专研精神,对推动优良学风建设有很大的促进作用。

比赛现场


优秀作品展示